Проект быстровозводимого теплого склада в Сочи
Ключевые преимущества
Проект быстровозводимого тёплого склада 16×30 м: надёжное решение для бизнеса
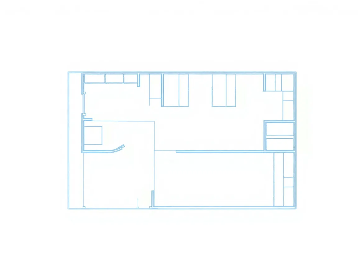
Представляем современный тёплый склад из металлоконструкций — функциональное и энергоэффективное сооружение для круглогодичного хранения товаров и материалов. Габариты 16 м в ширину, 30 м в длину и 7 м в высоту обеспечивают полезную площадь 480 м², что позволяет организовать вместительное складское пространство с зонированием под конкретные задачи. Конструкция спроектирована с учётом российских климатических условий и подходит для эксплуатации в любых регионах, включая зоны с суровыми зимами. Благодаря технологии быстрого возведения вы получаете готовый объект в сжатые сроки без потери качества.
Преимущества быстровозводимых складов из металлоконструкций
Использование металлокаркаса гарантирует высокую прочность и долговечность сооружения. Оцинкованные стальные элементы устойчивы к коррозии, а сэндвич‑панели с утеплителем обеспечивают отличную теплоизоляцию — внутри поддерживается стабильная температура даже в мороз. Технология монтажа не требует массивного фундамента: достаточно облегчённого основания, что снижает затраты на строительство. Склад легко адаптируется под нужды бизнеса — можно предусмотреть въездные группы, зоны комплектации, стеллажи и коммуникации. Конструкция сейсмоустойчива и выдерживает значительные снеговые и ветровые нагрузки.
Технические характеристики и комплектация в Сочи
Высота по коньку — 7 м, что позволяет разместить многоуровневые стеллажи или организовать мезонин. Каркас выполнен из профильных труб с антикоррозийным покрытием, стены и кровля — из сэндвич‑панелей толщиной 150 мм с минеральной ватой. В стандартную комплектацию входят: утеплённые ворота с уплотнителями, система естественной вентиляции, закладные под электрику и освещение. По запросу монтируются дополнительные элементы: автоматические ворота, приточно‑вытяжная вентиляция, отопление, пожарная сигнализация и охранные системы. Все материалы сертифицированы и соответствуют ГОСТ.
Варианты использования склада
Помещение подходит для хранения продовольственных и непродовольственных товаров, сырья, готовой продукции, оборудования и сезонных запасов. Его можно адаптировать под логистический хаб, распределительный центр, склад сырья для производства или хранилище сельхозпродукции. Пространство легко зонировать: выделить участки для приёмки, комплектации, отгрузки и временного хранения. При необходимости внутри организуют офис, комнату персонала или пункт выдачи заказов. Конструкция также востребована у интернет‑магазинов, маркетплейсов и курьерских служб.
Скорость строительства и экономическая выгода
Монтаж склада занимает 6–8 недель — в 2–3 раза быстрее, чем возведение кирпичного аналога. Сокращение сроков снижает общие затраты и позволяет быстрее начать эксплуатацию объекта. За счёт лёгкости конструкции расходы на фундамент сокращаются на 25–30 %. Эксплуатационные издержки минимальны: металл не гниёт, сэндвич‑панели не требуют покраски, а утепление снижает затраты на отопление зимой и кондиционирование летом. Долговечность сооружения превышает 40 лет при соблюдении базовых правил обслуживания.
Почему стоит выбрать наш проект в Сочи?
Мы предлагаем полный цикл услуг — от проектирования и согласования до сдачи «под ключ». Каждый этап контролируется опытными инженерами: от расчёта нагрузок до подбора утеплителя под климатические условия региона. Предоставляем гарантию на конструкцию и монтажные работы, обеспечиваем техническую поддержку после сдачи объекта. Результат — надёжный, энергоэффективный склад, который оптимизирует логистику, защитит ваши товары от внешних воздействий и окупится в кратчайшие сроки. Доверьте строительство профессионалам и получите современное решение для бизнеса точно в срок.
Этапы строительства в Сочи
Технические характеристики
Полная спецификация проекта
Области применения
Специализированное складское помещение для различных отраслей бизнеса
Склад сырья и комплектующих
Идеально подходит для хранения промышленных материалов, металлических заготовок, строительных компонентов и электронных комплектующих. В помещении можно организовать стеллажную систему с учётом специфики грузов. Подходит для производственных предприятий и дистрибьюторов.
Склад готовой продукции
Просторное помещение с контролируемым микроклиматом для хранения готовой продукции перед отгрузкой. Можно оборудовать зоны маркировки, упаковки и контроля качества. Оптимально для фабрик, заводов и крупных торговых компаний.
Логистический и распределительный центр
Организация приёмки, сортировки и отгрузки товаров. В складе можно разместить автоматизированные системы учёта, зоны комплектации заказов и погрузочные доки. Идеально для логистических операторов и маркетплейсов.
Оптовый склад товаров народного потребления
Хранение бытовой химии, косметики, посуды, текстиля и других потребительских товаров. Помещение позволяет организовать зонирование по категориям и обеспечить необходимые условия хранения. Подходит для оптовых баз и региональных дистрибьюторов.
Сельскохозяйственный склад
Хранение зерна, удобрений, кормов и сельхозпродукции. В помещении поддерживается оптимальный микроклимат для сохранности продукции. Можно оборудовать системы вентиляции и контроля влажности. Идеально для агрофирм и перерабатывающих предприятий.
Склад строительных материалов
Размещение кирпича, плитки, металлопроката, лакокрасочных изделий и других стройматериалов. Помещение обеспечивает защиту от атмосферных воздействий и позволяет организовать удобную систему складирования. Подходит для строительных баз и торговых домов.
Склад с регулируемым температурным режимом
Оснащение системами отопления и кондиционирования позволяет поддерживать заданный температурный режим. Подходит для хранения продуктов питания, медикаментов, химических реагентов и других товаров с особыми требованиями к условиям хранения.
Перевалочный склад для транзитных грузов
Временное хранение грузов в процессе транспортировки. В помещении организуются зоны временного складирования, контроля и перетарки. Оптимально для транспортных компаний и экспедиторов в Сочи.
Ответственное хранение и аутсорсинговый склад
Предоставление услуг складского хранения сторонним организациям. Помещение оснащается системами видеонаблюдения и контроля доступа. Подходит для компаний, не имеющих собственных складских площадей, и стартапов.
Окупаемость быстровозводимого тёплого склада
Экономическая эффективность инвестиций в современное складское помещение
Тёплый склад из металлоконструкций — перспективное вложение для развития логистического бизнеса и производства
Размеры: 16 м × 30 м (площадь — 480 м²), высота — 7 м
Сверхбыстрый ввод в эксплуатацию
Монтаж «под ключ» за 4–6 недель благодаря модульной конструкции. Оперативное начало работы склада позволяет быстрее выйти на плановые показатели доходности.
Многофункциональное зонирование
Возможность выделить зоны приёмки, хранения, комплектации и отгрузки в одном помещении. Предусмотрена интеграция систем автоматизации, что повышает пропускную способность склада и снижает трудозатраты.
Энергоэффективность и экономия на отоплении
Сэндвич‑панели толщиной 150 мм с минеральной ватой обеспечивают высокие теплоизоляционные свойства. Расходы на поддержание температуры снижаются на 35–40 % по сравнению с неотапливаемыми аналогами.
Масштабируемость решения
Конструкция позволяет при необходимости добавить дополнительные модули или изменить конфигурацию зон хранения без остановки работы склада. Гибкость адаптации под растущие объёмы бизнеса.
Надёжность в экстремальных условиях
Срок службы — свыше 40 лет. Каркас из оцинкованной стали выдерживает снеговую нагрузку до 240 кг/м², ветровую — до 32 м/с. Утеплённая конструкция сохраняет работоспособность при температурах от −40 °C до +50 °C в Сочи.
Высокая ликвидность актива
Склад востребован на рынке коммерческой недвижимости. Возможность сдачи в аренду логистическим компаниям, производителям или маркетплейсам повышает инвестиционную привлекательность объекта.
При средней ставке аренды в Сочи (от 2 200 руб./м² в год) годовой доход от сдачи тёплого склада площадью 480 м² может достигать 1 056 000 руб.
Расчётная окупаемость: 2,5–4 года при загрузке от 80 %. При организации ответственного хранения, кросс‑докинга или совмещении с производственными зонами срок окупаемости сокращается до 2 лет за счёт диверсификации доходов и оптимизации логистических процессов.
Подтверждение качества материалов и производства
.jpg)
.jpg)
.jpg)
.jpg)